Insert de bois de chauffage I-180
741,97 € TVA incluse 21%
Insert en bois sans turbine I-180
Fonctionnalités:
- Équipement en acier jusqu’à 4 mm.
- Tiroir à cendrier extraitoire
- Intérieur de la vermiculite
- Porte et grill en fonte
- Système à double combustion
- Double caméra
Table des matières
L’insert en bois sans turbine I-180 (80 cm) est un équipement distingué par sa robustesse en acier allant jusqu’à 4 mm, garantissant durabilité et résistance sur le long terme.
Son confort est incomparable grâce au tiroir à cendriers amovible, ce qui simplifie le nettoyage sans effort. À l’intérieur, la vermiculite assure une répartition uniforme de la chaleur, maximisant ainsi l’efficacité de la combustion
La porte et la grille en fonte ajoutent non seulement une touche esthétique élégante, mais aussi une rétention de chaleur exceptionnelle.
Équipé d’un système de combustion double et d’une double chambre, cet insert chauffe non seulement efficacement votre maison, mais prend aussi soin de l’environnement en réduisant les émissions.
Télécharger la fiche technique
Qu’est-ce que la combustion dans une cheminée ?
C’est la réaction chimique qui se produit entre l’oxygène et le combustible (bois de chauffage), avec une contribution initiale du feu au début du processus.
Qu’est-ce que la double combustion dans une cheminée ?
La combustion d’une cheminée basique émet des déchets expulsés par leur courant d’air, qui se retrouvent dans l’air extérieur et produisent mayor pollution environnementale, ainsi qu’une grande perte de chaleur et d’efficacité.
Si les déchets formés lors de la première combustion sont réutilisés comme combustible, les performances s’améliorent. Ce processus est appelé double combustion, et il s’effectue en injectant de l’air dans ces déchets. Cette seconde prise d’air améliore les performances finales de la cheminée, réduit les éléments éjectés, améliore les performances fines et maintient l’intérieur plus propre.
Quelle est la performance d’une cheminée ?
Cette valeur indique le pourcentage de chaleur réellement utilisé pour chauffer la pièce où elle se trouve, produite par la combustion. C’est-à-dire, sur 100 % de la chaleur produite à l’intérieur de la cheminée, la valeur qui nous sert réellement pour chauffer notre maison. Par exemple, un rendement de 71 % indique que 29 % de la chaleur est perdue dans la chambre de combustion propre de la cheminée et que 71 % est émis vers l’extérieur.
D’un autre côté, un concept différent est l’efficacité énergétique, qui est liée aux performances que l’on peut extraire d’un carburant, selon que l’on utilise combustion, double combustion, air primaire, air secondaire... Plus mayor le mécanisme pour extraire toute son énergie accumulée d’un combustible, plus notre cheminée aura mayor d’efficacité.
Qu’est-ce qu’un déflecteur de cheminée ?
C’est une pièce placée dans la partie supérieure de la chambre de combustion. Il sert d’écran entre le feu et la sortie de fumée où est installé le tuyau d’évacuation.
Il a une double fonction : d’une part, il empêche que lorsqu’il y a beaucoup de flammes, cela puisse affecter directement le tube, ce qui provoquerait l’accumulation de fumée dans la chambre de combustion du poêle car la flamme recouvre la sortie naturelle du poêle, tout en réduisant la consommation de bois, puisque le déflecteur régule la combustion du bois, Cela sert aussi à améliorer l’évacuation de la fumée, car la flamme, lorsqu’elle frappe le déflecteur, le chauffe, ce qui chauffe l’air en haut du déflecteur, le rendant moins lourd et le fait sortir par le tube vers le haut.
![]() |
![]() |
![]() |
![]() |
![]() |
![]() |
|
| Produit | Insert de bois de chauffage I-180 | Insert en bois avec turbine IT-165 F (65cm) + Cadeau direct | BH-100 P Insert en bois (avec porte) + Cadeau direct | Insert en bois avec turbine IT-165 FK (65cm) + Cadeau direct | Insert en bois avec turbine IT-170 | IT-180 Insert en bois avec turbine + cadeau direct |
| Avis |
|
|
|
|
|
|
| Fabricant | Calefacción FM | FM Calefacción | FM Calefacción | FM Calefacción | Calefacción FM | FM Calefacción |
| Prix |
876,00 € 613,20 € |
900,00 € 810,00 € |
933,88 € 840,50 € |
940,00 € 846,00 € |
952,00 € 666,40 € |
960,00 € 864,00 € |
| Différence de prix | +196,80 € | +227,30 € | +232,80 € | +53,20 € | +250,80 € | |
| Garantie |
3 ans |
3 ans |
3 ans |
3 ans |
3 ans |
3 ans |
| Certification énergétique |
À |
À |
À |
À |
||
| Puissance calorifique (kW) |
13-18 |
12,5-17 |
16 |
12,5-17 |
12,5-17 |
13.5 |
| Rendement ( %) |
78 |
77 |
57.5 |
77 |
75 |
73.5 |
| Émissions de CO ( %) |
0.07 |
0.09 |
0.15 |
0.09 |
0.12 |
0.30 |
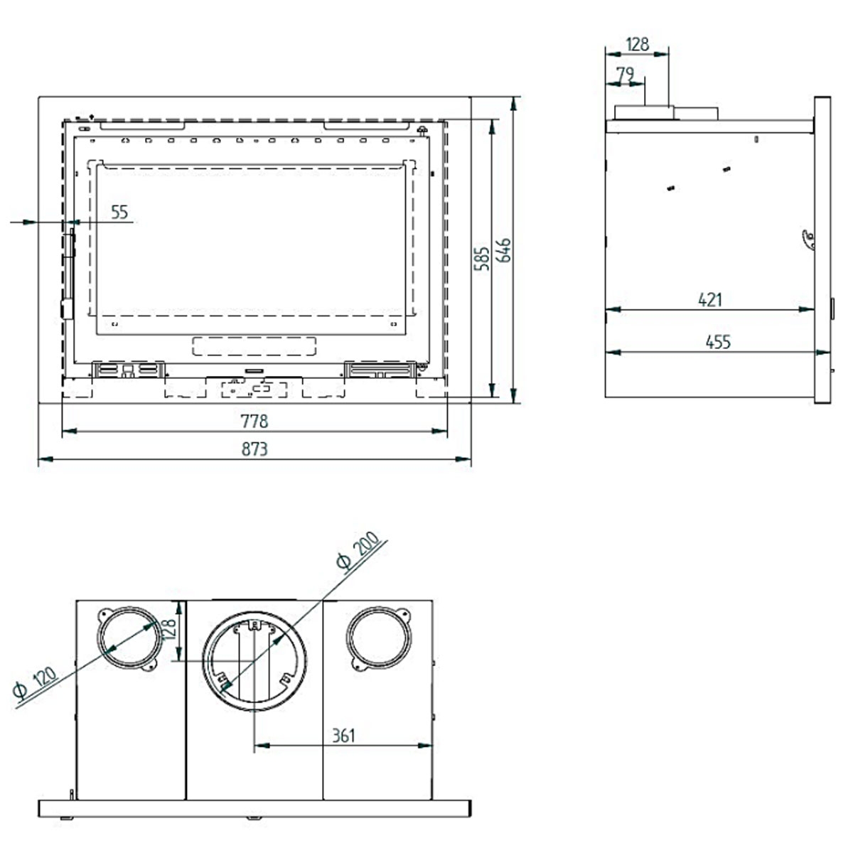
| Sortie de fumée (mm) |
200 120 |
150 |
250 |
150 |
150 |
200 |
| Zone de sortie de fumée |
Homme supérieur |
Homme supérieur |
Homme supérieur |
Homme supérieur |
Homme supérieur |
|
| Poids (kg) |
93 |
68 |
93 |
68 |
82 |
100 |
| Taille maximale. Malle (cm) |
75 |
62 |
85 |
62 |
62 |
75 |
| Volume chauffable (m3) |
340 |
335 |
400 |
335 |
335 |
338 |
| Type de combustion |
Double |
Double |
Simple |
Double |
Double |
Double |
| Tiroir cendrier coulissant |
Oui |
Non |
Non |
Oui |
||
| Intérieur en |
Vermiculite |
Fonderie |
Fonderie |
Vermiculite ou fonte en option |
||
| Bûcher |
Non |
Non |
Non |
Non |
||
| Double chambre |
Oui |
Oui |
Oui |
Oui |
||
| Chauffe-assiettes |
Non |
Non |
Non |
Non |
||
| Four |
Non |
Non |
Non |
Non |
||
| Ventilateurs (turbines) |
Non |
2 x 160 m3/h et 20 W x2 (220 V) |
2 x 160 m3/h et 20 W x2 (220 V) |
2 x 160 m3/h et 20 W x2 (220 V) |
2 x 160 m3/h et 20 W x2 (220 V) |
|
| Verre sérigraphié |
Non |
Non |
Oui |
Optionnel |
||
| Dimensions intégrées mm (largeur x profondeur x hauteur) |
733x451x593 |
624 x 392 x 530 |
624 x 392 x 530 |
617x422x536 |
||
| Dimensions de la face avant (hauteur x largeur) cm |
645x873 |
568 x 727 |
568 x 727 |
576x727 |
||
| Régulation de l’air primaire |
Oui |
Oui |
Oui |
Oui |
Oui |
Oui |
| Régulation de l’air secondaire |
Oui |
Oui |
Oui |
Oui |
Oui |
|
| Système de verre propre |
Oui |
Oui |
Oui |
Oui |
Oui |
|
| Résistance vitrocéramique (ºC) |
750 |
750 |
750 |
750 |
750 |
750 |
| Peinture résistante à la chaleur (ºC) |
800 |
800 |
800 |
800 |
800 |
800 |
| Prises pour chauffer d’autres pièces |
2 de 120mm |
2 de 120mm |
2 de 120mm |
|||
| Largeur (cm) |
100 |
80 |
||||
| Difficulté |
Avancé |
Avancé |
||||
| Entrée de bois de chauffage (mm) |
850 x 470 |
660 x 330 |
||||
| Combustible |
Bois à brûler |
Bois à brûler |
||||
| Consommation (kg/h) |
5.8 |
4.5 |
||||
| Profondeur de la chambre de combustion (cm) |
63 |
40.5 |
||||
| Vanne de tirage |
Oui |
Oui |
||||
| Diamètre des tuyaux canalisables (mm) |
120 |
|||||
| Système de double combustion |
Oui |
|||||
| Voir le produit | Voir le produit | Voir le produit | Voir le produit | Voir le produit | Voir le produit |




