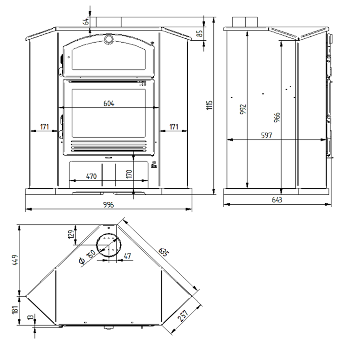
Estufa de leña de rincón con horno CH-4 R
1.045,44 € IVA incl. 21%
Estufa de leña de rincón CH-4 R con rincón de horno cerrado, tiene las siguientes características:
- Equipo Elaborado en Acero hasta 4 mm.
- Cajón Cenicero Extraible
- Interior en Vermiculita
- Sistema de Doble Combustión
- Equipo con Puertas y Parrilla de Fundición
Índice de contenidos
Descubre la elegancia y la eficiencia de nuestra estufa de leña de rincón CH-4-R. Este impresionante equipo está elaborado en acero resistente de hasta 4 mm de espesor, lo que garantiza durabilidad y rendimiento de primera clase.
Su diseño inteligente incluye un cajón cenicero extraíble para facilitar la limpieza y mantenimiento. En su interior, cuenta con un revestimiento de vermiculita que potencia la distribución uniforme del calor.
Además, su sistema de doble combustión asegura una quema eficiente de la leña, maximizando el calor generado. Las puertas y la parrilla de fundición añaden un toque de tradición y elegancia a esta estufa de leña de rincón, que combina belleza y funcionalidad en un solo producto.
Descargar Folleto de calefacción
¿En qué consiste la combustión en una estufa de leña?
Es la reacción química que se produce entre el oxígeno y el combustible (la leña), con una aportación inicial de fuego al principio del proceso.
¿Qué es la doble combustión en una estufa de leña?
La combustión de una estufa de leña básica emite residuos que se expulsan por el tiro de la misma, que van a parar al aire exterior y producen mayor contaminación ambiental, además de una gran pérdida de calor y eficiencia.
Si los residuos formados por la primera combustión se reutilizan como combustible, se mejora el rendimiento. A este proceso se le conoce como doble combustión, y se realiza inyectando aire en estos residuos. Esta segunda entrada de aire mejora el rendimiento final de la estufa de leña ,reduce los elementos expulsados, mejora el rendimiento fina, y mantiene el interior más limpio.
¿Qué es el rendimiento de una estufa de leña?
Este valor indica el porcentaje de calor que sirve realmente para calentar la estancia donde se encuentra, producida por la combustión. Es decir, que del 100% del calor producido dentro de la estufa de leña, el valor que realmente nos sirve para el calentamiento de nuestro hogar. Por ejemplo, un rendimiento del 71% indica que el 29% del calor se pierde en la propia cámara de combustión de la estufa de leña y el 71% se emite al exterior.
En cambio, un concepto diferente es la eficiencia energética, que está relacionada con el rendimiento capaz de extraerse de un combustible, según usemos una combustión, doble combustión, aire primario, aire secundario... Cuanto mayor sean los mecanismo para extraer de un combustible toda su energía acumulada, mayor eficiencia tendrá nuestra estufa de leña.
¿Qué es el deflector de una estufa de leña?
Es una pieza que va colocada en la parte alta de la cámara de combustión. Sirve de pantalla entre el fuego y la salida de humos donde se encaja el tubo de evacuación.
Tiene una doble función, por un lado evita que cuando hay mucha llama pueda incidir directamente en el tubo, lo que haría que el humo se acumulase en la cámara de combustión de la estufa al estar la llama tapando la salida natural del mismo, al tiempo que reduce el consumo de leña, ya que con el deflector se regula el quemado de leña, y sirve también para mejorar la evacuación de humos, ya que la llama al incidir en el deflector, lo calienta, y este calienta el aire de la parte de arriba del deflector haciendo que pese menos, y hace que salga por el tubo hacia arriba.
![]() |
![]() |
![]() |
![]() |
![]() |
![]() |
|
| Producto | Estufa de leña de rincón con horno CH-4 R | Estufa de leña frontal con horno CH-8 | Estufa de leña con interior de fundicion M-108 PF + Regalo directo | Estufas Calefaccion de Aire Dante con Horno | Estufa de leña de Rincón M-105 H + Regalo directo | Estufa de leña frontal con horno M-104 |
| Valoraciones |
|
|
|
|
|
|
| Fabricante | FM Calefacción | FM Calefacción | FM Calefacción | Joyma | FM Calefacción | FM Calefacción |
| Precio |
960,00 € 864,00 € |
950,00 € 855,00 € |
940,00 € 846,00 € |
983,13 € |
990,00 € 891,00 € |
888,00 € 799,20 € |
| Diferencia de precio | -9,00 € | -18,00 € | +119,13 € | +27,00 € | -64,80 € | |
| Garantía |
3 años |
3 años |
3 años |
3 años |
3 años |
|
| Certificación energética |
A+ |
A+ |
A |
A |
A |
|
| Potencia calorífica (kW) |
9,5-12 |
9,5-12 |
9.5-12 |
9.2 |
11-15 |
11-15 |
| Rendimiento (%) |
81 |
81 |
81 |
75 |
75 |
|
| Emisiones CO (%) |
0.08 |
0.08 |
0.08 |
0.11 |
0.11 |
|
| Salida de humos (mm) |
150 |
150 |
150 |
150 |
150 |
150 |
| Zona salida de humos |
Macho Superior |
Macho Superior |
Macho Superior |
Macho Superior |
Macho Superior |
|
| Peso (kg) |
116 |
128 |
75 |
105 |
93 |
|
| Tamaño max. tronco (cm) |
65 |
65 |
65 |
50 |
50 |
|
| Volumen calefactable (m3) |
260 |
295 |
260 |
305 |
305 |
|
| Tipo de Combustión |
Doble |
Doble |
Doble |
Simple |
Doble |
Doble |
| Cajón cenicero extraíble |
Sí |
Sí |
Sí |
Sí |
Sí |
|
| Leñero |
Sí |
Sí |
Sí |
Sí |
Sí |
Sí |
| Doble cámara |
Sí |
No |
No |
No |
Sí |
Sí |
| Calienta platos |
No |
No |
No |
No |
No |
|
| Horno |
Sí |
Sí |
No |
Sí |
Sí |
Sí |
| Ventiladores (turbinas) |
No |
No |
No |
No |
No |
|
| Dimensiones cm (ancho x largo x alto) |
982x590x1115 |
650x495x1136 |
648x504x713 |
61x48x80 |
881x640x1015 |
562x460x1015 |
| Regulación de aire primario |
Sí |
Sí |
Sí |
Sí |
Sí |
|
| Regulación de aire secundario |
Sí |
Sí |
Sí |
Sí |
Sí |
|
| Sistema de cristal-limpio |
Sí |
Sí |
Sí |
Sí |
Sí |
Sí |
| Resistencia cristal vitrocerámico (ºC) |
750 |
750 |
750 |
750 |
750 |
750 |
| Resistencia pintura anticalórica (ºC) |
800 |
800 |
800 |
800 |
800 |
|
| Bandeja horno acero inox. |
Sí |
|||||
| Combustible |
Leña |
|||||
| Pared |
Recta |
|||||
| Ver producto | Ver producto | Ver producto | Ver producto | Ver producto | Ver producto |











